Dom w zabudowie szeregowej/cicha/zielona okolica/blisko Wrocławia/Iwiny
Iwiny gm. Siechnice Pokaż na mapie ›
Dodane: Czwartek, 30 Październik, 2025 13:36
960 000 zł
7559 zł/m2
Szczegóły ogłoszenia
- Kategoria: Domy / Sprzedaż
- Powierzchnia:127 m2
- Liczba pokoi:5 i więcej pokoi
- Rynek:Pierwotny
- Rok budowy:2026
- Sprzedaż:Pośrednik
- Cena: 960 000 zł / 7559 zł/m2
Opis oferty
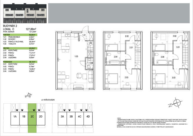
Zapraszam do zakupu pięknych domów w zabudowie szeregowej z ogrodami. Otoczenie malowniczych terenów zielonych jest niewątpliwym atutem tego miejsca, docenianym przez osoby chcące mieć za „sąsiadów” ciszę i spokój. Bliskość Wrocławia, a zarazem cisza i zieleń- sprawiają, że jest to odpowiednie miejsce zarówno dla rodzin z dziećmi jak i osób ceniących życie z dala od miejskiego zgiełku oraz okolicę z dużym potencjałem rozwoju. Komfort życia to lokalizacja, odpowiedni metraż, idealny rozkład sprawią, że pokochasz to miejsce.Prezentowane mieszkanie ma powierzchnię 127,89m2 a jego główne cechy to-na parterze -duży przestronny salon z aneksem kuchennym o powierzchni 39,35m2 z wyjściem na ogród o powierzchni aż 70m2. Na parterze znajduje się również toaleta o powierzchni 2,01m oraz przedsionek o powierzchni 2,54m2. Na piętrze znajdują się dwie sypialnie o powierzchniach 17,97m2 i 11,31m2 oraz łazienka o powierzchni 5,83m2. Na poddaszu zaplanowano dwie sypialnie o powierzchniach 14,69m2, 9,79m2 oraz łazienkę o powierzchni 5,83m2.
Stan deweloperski:-wykonanie instalacji elektrycznej, gazowej, wodnej. W standardzie również wyjście pod fotowoltaikę, klimatyzację, rolety zewnętrzne. Światłowód, okna 3 szybowe,- drzwi wejściowe, wykonanie drogi dojazdowej.
Termin realizacji inwestycji 31-12-2026
Zapraszam do kontaktu w celu przygotowania oferty / umówienia się na prezentacje – Kupujący nie płaci prowizji.
Zapewniam
- profesjonalną obsługę, gwarantowaną wieloletnim doświadczeniem w branży nieruchomości-możliwość bezpłatnej rezerwacji apartamentu
- kompleksowe wsparcie na każdym etapie transakcji
- gwarancję bezpiecznego zakupu
- oszczędność czasu
-pomoc w uzyskaniu kredytu na najlepszych warunkach
- kompleksowe doradztwo
Ania Kamuda- Doradca klienta
tel. 535 - pokaż numer telefonu -
@
Nr oferty DI /2C/AK
Zamieszczone na naszych stronach informacje nie stanowią oferty w rozumieniu Kodeksu Cywilnego, a dane w nich zawarte mają jedynie charakter informacyjny.
OFERTA CENOWA AKTUALNA NA DZIEŃ 30.10.2025 I OBOWIĄZUJE DO DNIA 30.10.2025
Sprawdź zainteresowanie tym ogłoszeniem
Wyświetlenia
Data dodania
Ostatnio widziany
Obserwujących
Wysłane zapytania
Odsłony telefonu
Powiadom o podobnych ogłoszeniach
Lokalizacja: Iwiny
Kategoria: Nieruchomości » Domy » Sprzedaż
Cena: od 816000 zł do 1104000 zł Powierzchnia : od 108 m2 do 146 m2
Chcę otrzymywać powiadomienia o nowych ofertach
- Wypromuj ogłoszenie
- Zgłoś naruszenie
- Drukuj ulotkę
- Edytuj/usuń ogłoszenie
- Udostępnij ogłoszenie
- Dodaj na Facebook
































